106 מ"ר משרד מאור בקומה גבוהה בסר 3 מרכז העסקים בני ברק

מצדה 9 בני ברק

על המשרד

במגדל בסר 3, מרחק הליכה מהרכבת הקלה (קו אדום), משרד בקומה גבוהה.

חלוקה לאזור קבלה,מטבחון, חדר ישיבות ו3 חדרים מרווחים. מחיר מציאה!

לתיאום סיור שלחו הודעה עכשיו 🙂

מחפשים עוד משרדים להשכרה בבני ברק ? צרו קשר ונשמח לעזור

מאפייני המשרד

שטח
m2 106
השכרה
69
דמי ניהול
17
חניה
דרוג בניין
Class A

ארנונה

למידע נוסף על הארנונה

טיפ
אם אתם בית תוכנה ייתכן וישנה הנחה..
מסתבכים? דברו איתנו

רמת גמר
גמר מלא

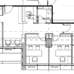
מפת המשרד

מאפיינים נוספים

שומר בלובי
מעלית
מטבחון
ליד הרכבת הקלה
חניה
חדר ישיבות
גישה לתחב"צ

מתעניינים בנכס זה? בואו נדבר!

שתפו ברשתות החברתיות

נכסים דומים

בר כוכבא 16 בני ברק
הקישון בני ברק
השכרה: 65 ₪
חניה: 650 ₪
דמי ניהול: 12 ₪
הקישון בני ברק
הקישון בני ברק
השכרה: 65 ₪
חניה: 650 ₪
דמי ניהול: 12 ₪
We use cookies to personalise content and ads, to provide social media features and to analyse our traffic. We also share information about your use of our site with our social media, advertising and analytics partners. View more
Cookies settings
Accept
Decline
Privacy & Cookie policy
Privacy & Cookies policy
Cookie name Active
דנמר נדל"ן מודים על בחירתכם לגלוש באתר האינטרנט שלנו בכתובת www.dnmr.co.il ("האתר"). האתר מציע פלטפורמה מקוונת נוחה ובטוחה המתווכת בין רוכשי ומוכרי נכסים בישראל ומפרסמת מגוון נכסים למכירה והשכרה. כמו כן, האתר מעניק אפשרות לשיתוף וקבלת מידע באתר, בלוג, מאמרי תוכן, ביקורות על נכסים ועוד ("התכנים"). 1 . השימוש באתר: 1.1 . תקנון ותנאי שימוש אלה מהווים הסכם מחייב בינך, בין אם באופן פרטי ובין באמצעות תאגיד (״אתה״)לבין האתר בנוגע לגלישה ושימוש באתר בכל מחשב או מכשיר תקשורת אחר כדוגמת טלפון סלולרי, מחשבי טאבלט וכיו"ב. כמו כן הם חלים על השימוש באתר, בין באמצעות רשת האינטרנט ובין באמצעות כל רשת או אמצעי תקשורת אחרים לרבות גישה לאתר באמצעות הטלפון, אפליקציה או על אמצעי אחר. קרא את התקנון ותנאי השימוש בקפידה, שכן הגלישה באתר וביצוע פעולות בו מעידים על הסכמתך לתנאים הכלולים בתקנון ותנאי שימוש אלו (״התקנון״). 1.2 . האתר שומר את זכותו לשנות את תנאי התקנון, מעת לעת, על פי שיקול דעתו הבלעדי וללא הודעה מוקדמת. מועד החלת השינוי כאמור יהיה מרגע פרסומו באתר. 1.3 . האמור בתקנון מתייחס באופן שווה לבני שני המינים והשימוש בלשון נקבה ו/או זכר הוא מטעמי נוחות בלבד. 1.4 . הגלישה באתר מותרת בכל גיל. פעולה באתר של קטין מתחת לגיל 18 מחייבת אישור הורה או אפוטרופוס. 1.5 . תנאי תקנון זה יישארו בתוקפם בעת השימוש באתר. מבלי לגרוע מכל הוראה אחרת בתקנון זה , האתר שומר על זכותו למנוע מכל גולש את השימוש באתר )לרבות חסימת כתובות IP מסוימות(, מכל סיבה או נימוק שהוא )מבלי שיצטרך לספק סיבה או נימוק(, בשיקול דעתו הבלעדי, ללא צורך בהודעה מוקדמת או התראה ומבלי שיהיה אחראי לנזק כלשהו עקב החלטתו. כמו כן, האתר רשאי להפסיק את השימוש שלך בו וכל תוכן או מידע שפרסמת בכל עת, ללא אזהרה מראש. 2 . הצהרות משתמש: 2.1 . בטרם השימוש באתר, גולשי ולקוחות האתר מצהירים, מאשרים ומסכימים כי ידוע להם: 2.1.1 . שהתכנים והמידע המופיעים באתר ניתנים ומסופקים לשם הלימוד והעשרה בלבד וכל פעולה שתעשה בעקבותיהם תעשה על אחריות הגולש; 2.1.2 . שהתכנים והמידע אינם מובאים כתחליף לייעוץ נדל"ן ו/או השקעות ו/או פיננסי ו/או מקצועי, ואין לראות בהם ייעוץ של אנשי מקצוע בתחום ההשקעות ו/או אנשי מקצוע אחרים; 2.1.3 . שללקוחות האתר לא תהיה כל טענה כלפי האתר, מנהליו, עובדיו, שותפיו או מי מטעמו והם לא יהיו אחראים, באופן ישיר או עקיף, לכל נזק לרבות, לגוף, לרכוש או לכל נזק אחר או לכל הפסד אחר, אשר יגרם כתוצאה מקבלת תוכן מהאתר ו/או מהמאמרים ו/או משירותי האתר, אפילו אם האתר הזה יר, המליץ או ייעץ לעניין מסוים או על שירות מסוים ובשום מקרה האתר לא יהווה תחליף או יישא באחריות הלקוח ו/או מקבל השירות. על הלקוח חלה האחריות וכל סיכון חובה עבור נזק לרכושו ו/או לרכושם של צדדים שלישיים, הנובעים מהשימוש ו/או אי השימוש באתר ו/או בתכנים ו/או במוצרים באתר. 2.1.4 . יובהר, כי פרסום באתר אינו מבטיח הצלחה ו/או מכירה ו/או השכרה של נכסים אלא קידום ושיווק בלבד. 2.2 . בעת גלישה באתר, אתה מתחייב ומצהיר כדלקמן: (1) הגלישה באתר והשימוש הם באחריותך הבלעדית; (2)הפרטים שהזנת בעת השארת הפרטים באתר הם נכונים, עדכניים, מדיוקים ומלאים; (3) ככל ויהיה בכך צורך, במקרה של שינוי פרטים תעדכנם בפנייה לאתר; (4) הנך בעל כשירות משפטית ואתה מסכים לתנאי התקנון; (5) לא תעשה שימוש באתר באמצעים אוטומטיים או לא אנושיים, בין אם באמצעות BOT , סקריפט או בכל דרך אחרת; (6) לא תעשה שימוש בלתי חוקי באתר; (7) השימוש שלך באתר לא יפר כל חוק או תקנה רלוונטיים. 2.3 . האתר רשאי, למנוע מכל גולש שימוש באתר לפי שיקול דעתו המוחלט. מבלי לגרוע מהאמור לעיל, רשאי האתר למנוע גלישת גולש ו/או לחסום גישתו אליו בכל אחד מהמקרים הבאים : 2.3.1 . אם בעת השארת פרטים באתר נמסרו במתכוון פרטים שגויים; 2.3.2 . במקרה שנעשה שימוש באתר לביצוע או כדי לנסות לבצע מעשה בלתי חוקי על – פי דיני מדינת ישראל, או מעשה הנחזה על פניו כבלתי חוקי כאמור, או כדי לאפשר, להקל, לסייע או לעודד ביצועו של מעשה כזה; 2.3.3 . במקרה שנעשה שימוש באתר בניסיון להתחרות באתר; 2.3.4 . אם הופרו תנאי תקנון זה ; 2.3.5 . אם נעשתה על ידי גולש כל פעולה שתמנע מאחרים לגלוש לאתר או להמשיך ולהשתמש באתר בכל דרך שהיא. 3 . קניין רוחני: 3.1 . אלא אם צוין במפורש אחרת, כל זכויות היוצרים והקניין הרוחני באתר, לרבות, עיצובים, תמונות, מאגרי מידע, תוכנות, קוד, שמע, וידאו, טקסט (״התוכן״)וכן סמלילים, סימני מסחר וכיו״ב (״הסימנים״) הם בבעלות האתר בלבד, או בבעלות צד שלישי , שהרשה לאתר או נתן רישיון לאתר לעשות שימוש על פי דין בתכנים או בסימנים ובכלל זה שותפיו העסקיים של האתר . 3.2 . התוכן והסימנים ניתנים כמו שהם ״ AS IS ״ לשימוש אישי בלבד. אלא אם צוין במפורש אחרת, אין להעתיק, להפיץ, להציג בפומבי, לבצע בפומבי, להעביר לציבור, לשנות, לעבד , ליצור יצירות נגזרות, למכור או להשכיר כל חלק מן הנ"ל, בין ישירות ובין באמצעות או בשיתוף צד שלישי, בכל דרך או אמצעי בין אם אלקטרוניים, מכאניים, אופטיים, אמצעי צילום או הקלטה, או בכל אמצעי ודרך אחרת, בלא קבלת הסכמה בכתב ומראש מהאתר או מבעלי הזכויות האחרים, לפי העניין, ובכפוף לתנאי ההסכמה (ככל שתינתן). הוראה זו תקפה גם ביחס לכל עיבוד, עריכה או תרגום שנעשו על ידי האתר לתכנים שהוזנו או נמסרו על ידי הגולשים לאתר. 3.3 . אם וככל שניתנה הסכמה כאמור, האתר מקנה לך רישיון מוגבל לשימוש בו ולהורדת או הדפסת עותק של כל חלק מהתוכן אליו ניתנה גישה ראויה לשימוש אישי בלבד, שאינו מסחרי. 3.4 . אם וככל שניתנה הסכמה כאמור, יש להימנע מלהסיר, למחוק או לשבש כל הודעה או סימן בעניין זכויות קניין רוחני, לדוגמה: סימון זכויות היוצרים ,© או סימן מסחר ® , הנלווים לתכנים שיעשה בהם שימוש . 3.5 . סימני המסחר, צילומים, תמונות תכנים ומודעות הפרסומת של שותפיה העסקיים של האתר הינם קניינם של מפרסמים אלה בלבד. גם בהם אין לעשות בהם שימוש בלא הסכמת המפרסם מראש ובכתב . 4 . הרשאה לדיוור, פרסומים ופרסומת : 4.1 . גולש שהשאיר פרטים באתר ומצורף לרשימת הדיוור של האתר, מאשר שימוש בפרטיו לצורך קבלת מידע שיווקי, עדכונים ופרסומות שיבצע האתר מעת לעת. 4.2 . על גולש שהשאיר פרטים כאמור תחולנה הוראות הדיוור המפורטות בתקנון להלן. 4.3 . אין להשאיר פרטים של אדם אחר באתר שלא בהסכמתו ו/או ללא נוכח ותו מול המסך בשעת השארת הפרטים ולאחר שהוסברו לו כל תנאי התקנון. 4.4 . בעת השארת הפרטים יתבקש הגולש למסור פרטים אישיים כגון: שם פרטי, שם משפחה, וכן כתובת דואר אלקטרוני פעילה. מסירת פרטים חלקיים או שגויים עלולים למנוע את האפשרות להשתמש בשירות ולסכל יצירת קשר במקרה הצורך. במקרה של שינוי פרטים יש לעדכנם באתר. 4.5 . מובהר כי אין חובה על-פי חוק למסור פרטים באתר, אולם בלא למוסרם לא ניתן יהיה לקבל תוכן שיווקי ועדכונים מהאתר. 4.6 . האתר לא יעשה בפרטים שנמסרו שימוש, אלא בהתאם למדיניות הפרטיות של האתר המהווה חלק בלתי נפרד מהתקנון. 4.7 . השארת פרטים באתר ואישור לקבלת תוכן שיווקי כוללת, בין היתר, קבלת תוכן שיווקי, מידע ביחס למבצעים, עדכונים והנחות המוצעים למשתמשים רשומים. 4.8 . אישור דיוור (קבלת תוכן שיווקי) כאמור, מהווה את הסכמתו של הגולש למשלוח דברי פרסומת על-פי חוק התקשורת (בזק ושידורים) (תיקון מס' 40) התשס"ח – 2008 ("חוק התקשורת"). 4.9 . מובהר כי באפשרות משאיר הפרטים להסיר עצמו בכל עת מהדיוור באמצעות לחיצה על "להסרה מרשימת התפוצה" שמופיע בתחתית כל דיוור שנשלח או באמצעות פנייה בדוא"ל לאתר. כל עוד לא הסירו עצמו הנרשם מרשימת הדיוור כאמור, רשאי האתר, בכפוף לחוק התקשורת, להעביר לנרשם דיוור ישיר כאמור. 4.10 . אין לראות במידע בדיוור משום הבטחה לתוצאה כלשהי ו/או אחריות לשירות המוצע בו. 4.11 . הדיוור בכללותו, לרבות כל המידע המופיע בו, מוצע כמות שהוא, ויהיה מדויק ונכון ככל הניתן, ואולם, יתכן והמידע אינו שלם או לחלופין, יתכן ונפלו טעויות טכניות או אחרות במידע . 4.12 . הגולש מאשר כי לא תהיה לו כל טענה בקשר למודעות פרסום ו/או פרסומות המוצגות באתר, לרבות בקשר למיקומן באתר. מובהר כי בכל הנוגע למודעות פרסום המוצגות בחסות צד שלישי, לאתר אין כל התערבות בבחירת הפרסומות המוצגות, אמיתות תוכנן וסדר הופעתן. 5 . התכנים המוצגים באתר: 5.1 . התכנים המוצגים על ידי האתר יופיעו ויוצגו בדפי האתר. 5.2 . האתר אינו מחויב, בכל דרך שהיא, לקיים מגוון כלשהו של תכנים. 5.3 . המחירים המוצגים לצד התכנים באתר אינם סופיים ואינם מחייבים את האתר בשום צורה ואופן, המחירים המוצגים מהווים אינדיקציה ראשונית בלבד והמחיר הקובע הוא המחיר שיקבע מול בעל הנכס בעת רכישה, ככל ותתרחש. 5.4 . האתר רשאי בכל עת לשנות את מגוון התכנים המוצגים באתר, להחליפם להמעיט מהם, להוסיף עליהם, ללא כל הודעה או התראה מוקדמת . 5.5 . אופן הצגת התכנים באתר הינו על-פי שיקול דעתו הבלעדי של האתר. 5.6 . ייתכן והאתר יגבה תשלום מצדדים שלישיים עבור סקירה ו/או המלצה ו/ או ביקורת למוצרים ו/או שירותים המסופקים על ידי צדדים שלישיים. 5.7 . ייתכן והאתר יקבל תגמול מצדדים שלישיים כלשהם עבור פרסום מוצרים ו /או שירותים באתר ו/או עבור שיתופי פעולה עם צדדים שלישיים באתר, בין היתר עבור מכירות שבוצעו באמצעות לינקים לרכישה באתרי צד שלישי. 6 . אחריות האתר : 6.1 . אין לראות במידע המופיע באתר משום הבטחה לתוצאה כלשהי ו/או אחריות לאופן הפעילויות של השירותים המסופקים בו או המידע שמוצג בו. האתר לא יהיה אחראי לשום נזק, ישיר או עקיף, אשר ייגרם לגולש כתוצאה מהסתמכות על מידע המופיע באתר ו/או בקישורים לאתרים אחרים ו/או כל מקור מידע פנימי ו/או חיצוני אחר ו/או שימוש בשירותים ובמידע אשר מוצגים על ידו. 6.2 . התכנים המופיעים באתר מסופקים על ידי צדדים שלישיים. הסתמכות על התכנים וההתקשרות עם המפרסמים וכותבי התכנים נעשית באחריותו הבלעדית של הלקוח ולא תהיה ללקוח כל טענה כלפי האתר, מנהליו, עובדיו או מי מטעמו והם לא יהיו אחראים, באופן ישיר או עקיף, לכל נזק לרבות, לגוף, לרכוש או לכל נזק אחר או לכל הפסד אחר, אשר יגרם כתוצאה משימוש בתכנים ובשירותים המפורסמים באתר, אפילו אם האתר הזהיר, המליץ או ייעץ לעניין מסוים או על שירות מסוים ובשום מקרה האתר לא יהווה תחליף או יישא באחריות הגולש. 6.3 . מידע ומצגים אודות השיר ותים ו/או נכסי הנדל"ן המוצגים באתר, שמקורם בבתי העסק ו/או בבעלי מקצוע ו/או במשתמשים המפרסמים תכנים ו/או מוצרים ו/או שירותים באתר וכל תוכן שיימסר לפרסום על ידי משתמשי האתר ייעשה באחריותם הבלעדית של משתמשי האתר, נמצאים באחריותם הבלעדית של בתי העסק ו/או בעלי המקצוע ו/או במשתמשים המפרסמים באתר כאמור, ועל כן, מובן שלאתר אין כל אחריות בגין מידע מעין זה, ואין האתר ערב למידת הדיוק של מידע זה. 6.4 . האתר עושה מאמצים לבדוק את בתי העסק, בעלי המקצוע והתכנים המועברים לפרסום באתר. יחד עם זאת, יודגש ויובהר שהאתר לא יהיה מחויב לעשות בדיקות רקע לבתי העסק ובעלי המקצוע ואינו יכול ולא יהיה אחראי למידע המפורסם באתר. 6.5 . האתר לא יהיה אחראי לכל נזק (ישיר או עקיף), הפסד, עגמת נפש והוצאות שייגרמו לגולשים ו/או לצדדים שלישיים כלשהם בעקבות שימוש או הסתמכות על כל תוכן, מידע, נתון, מצג, תמונה, וידאו, אודיו, פרסומת, מוצר, שירות וכו' המופעים באתר. כל הסתמכות כאמור נעשית על -פי שיקול דעתו ואחריותו הבלעדית של הגולש באתר. 6.6 . האתר בשום מקרה לא יהיה אחראי לנזק שנגרם לגולש האתר באמצעות יצירת קשר עם בית עסק או בעל מקצוע המפרסם את עצמו באתר, או עם שותפיו העסקיים של האתר. 6.7 . האתר אינו צד להתקשרות בין בתי העסק ו/או בעלי מקצוע ו/או המשתמשים ו/או בעלי הנכסים המפורסמים באתר לבין הלקוח והוא פועל אך ורק בכדי לקשר ביניהם. כמו כן, האתר אינו מספק את השירותים ו/או נכסי הנדל"ן שמפורסמים באתר אלא משמש כפלטפורמה מקוונת בלבד , המתווכת ביניהם. 6.8 . האתר ממלי ץ לגולשים באתר לנהוג בתבונה ובזהירות, ולקרוא בעיון את המידע המוצג באתר ובכלל זה את המידע ביחס לשירות עצמו, תיאורו והתאמתו, כמתואר להלן. 6.9 . התכנים באתר ניתנים לשימוש כמות שהם ("AS IS"). לא ניתן להתאימם לצרכיו של כל אדם ואדם. לא תהיה לגולש כל טענה, תביעה או דרישה כלפי האתר בגין תכונות של התכנים, יכולותיהם, מגבלותיהם ו/או התאמתם לצרכיו. 6.10 . האתר בכללותו, לרבות כל המידע המופיע בו, מוצע לציבור כמות שהוא, ויהיה מדויק ונכון ככל הניתן, ואולם, יתכן והמידע אינו שלם או לחלופין, יתכן ונפלו טעויות טכניות או אחרות במידע . 6.11 . השימוש באתר ייעשה על אחריותו הבלעדית והמלאה של כל גולש. כל החלטה שתתקבל ביחס לתכנים שיתפרסמו באתר הינה באחריותו המלאה של הגולש. 6.12 . האתר אינו מתחייב כי תכנים ושירותים המתפרסמים באתר, יהיו מלאים, נכונים, חוקיים או מדויקים או יהלמו את ציפיותיו ודרישותיו של כל גולש. האתר לא יישא באחריות כלשהי לכל תוצאה שתנבע מהם, או משימוש בהם, או מהסתמכות עליהם, לרבות: (1) שגיאות, טעויות ואי- דיוקים; (2) נזק לגוף או לרכוש, מכל סוג, הנגרם עקב השימוש באתר ו/או בשירותי האתר; (3) הפרעה בגישה לאתר או מהאתר; (4) כל באג, וירוס, סוסי טרויאני וכיו״ב שעלולים להיות מועברים לאתר על ידי צד שלישי כלשהו. 7 . פעילות אסורה באתר: 7.1 . אינך רשאי להשתמש באתר אלא למטרות שלשמן הוא נועד. השימוש באתר מותר למטרות פרטיות ואישיות בלבד ואין לעשות בו שימוש למטרות מסחריות למעט כאלו שיאושרו על ידי האתר באופן ספציפי. 7.2 . כמשתמש האתר, אתה מסכים שלא: 7.2.1 . לאחזר נתונים או תוכן אחר מהאתר כדי ליצור או להרכיב אוסף, מסד נתונים או מדריך ללא אישור מראש ובכתב מהאתר; 7.2.2 . לעשות כל שימוש בעיצובי האתר; 7.2.3 . לעשות שימוש לא מורשה באתר, לרבות איסוף כתובות דוא"ל וכיו״ב באמצעים אלקטרוניים או אחרים לצורך שליחת דוא"ל באמצעים אוטומטיים; 7.2.4 . לעקוף, להשבית או להפריע בדרך אחרת לאבטחה האתר, לרבות שימוש ביישומים המונעים או מגבילים את השימוש או ההעתקה של תוכן כלשהו; 7.2.5 . להונות או להטעות את האתר ו/או את משתמשי ו; 7.2.6 . לעשות שימוש לא נכון בשירותי התמיכה של האתר; 7.2.7 . לעשות שימוש אוטומטי במערכת, כגון שימוש בסקריפטים לשליחת הערות או הודעות, או שימוש בכריית נתונים, רובוטים או כלי איסוף וחילוץ נתונים דומים; 7.2.8 . לנסות להתחזות לאדם אחר ; 7.2.9 . להשתמש במידע שהתקבל ב אתר על מנת להטריד, להתעלל או לפגוע באדם אחר; 7.2.10 . להשתמש באתר כחלק מכל מאמץ להתחרות באתר; 7.2.11 . לאחזר, לפענח או להנדס לאחור חלק מהאתר, אפשרות באתר או יישום באתר; 7.2.12 . להטריד, להפחיד או לאיים על כל אחד מעובדי או סוכני האתר; 7.2.13 . למחוק את זכויות היוצרים או את הודעת הזכויות הקנייניות מכל תוכן או סימן; 7.2.14 . להעתיק או להתאים את קוד האתר או חלק ממנו, כולל אך לא רק Flash , PHP, HTML JavaScript או קוד אחר; 7.2.15 . להעלות או להעביר (או לנסות להעלות או להעביר) וירוסים, סוסים טרויאניים, או חומר אחר, כולל שימוש בדואר זבל, אשר יפריע לשימוש באתר; 7.2.16 . לבצע פעולה שתפגע או תזיק לאתר, בהתאם לשיקול דעתו של האתר; 7.2.17 . להשתמש באתר באופן שאינו עולה בקנה אחד החוק, התקנות והפסיקה. 7.3 . אין לקשר לתכנים מהאתר, שאינם דף הבית של האתרים ("קישור עמוק")ואין להציג, או לפרסם תכנים כאמור בכל דרך אחרת, אלא אם הקישור העמוק יהיה לדף אינטרנט באתר במלואו וכפי שהוא ( AS IS) כך שניתן יהיה לצפות ולהשתמש בו באופן הזהה לחלוטין לשימוש ולצפייה בו באתר. במסגרת זו, חל איסור לקשר לתכנים מהאתר, במנותק מדפי האינטרנט שבהם הם מופיעים באתרים (לדוגמה: אסור לקשר במישרין לתמונה או לקובץ גרפי באתר, אלא לעמוד המלא שבו הם מופיעים). כמו כן על כתובתו המדויקת של דף האינטרנט באתר להופיע במקום הרגיל המיועד לכך בממשק המשתמש, לדוגמה: בשורת הכתובת (Status Bar) בדפדפן של המשתמש. אין לשנות, לסלף או להסתיר כתובת זו ואין להחליפה בכל כתובת אחרת. 7.4 . האתר רשאי לדרוש ביטול כל קישור עמוק כאמור לפי שיקול דעתו הבלעדי ובמקרה זה לא תעמוד כל טענה, דרישה או תביעה כלפי האתר בעניין זה. 7.5 . האתר לא יישא בכל אחריות לכל נזק שייגרם כתוצאה מכל קישור לתכנים מהאתר ומכל הצגה או פרסום של תכנים כאמור בכל דרך אחרת. האחריות המלאה והבלעדית לכל קישור, הצגה או פרסום של התכנים, היא על מבצע הקישור בלבד. 7.6 . כל שימוש באתר תוך הפרה של האמור לעיל עלול לגרום, בין היתר, לסיום או השעיית זכויותיך לשימוש באתר. 7.7 . על הגולש לשפות את האתר, עובדיו, מנהליו, שותפיו העסקיים או מי מטעמו בגין כל נזק, הפסד, אבדן רווח, תשלום או הוצאה שייגרמו להם – ובכלל זה שכ"ט עו "ד והוצאות משפט עקב הפרת תקנון זה. בנוסף, ישפה המשתמש את האתר, עובדיו, מנהליו או מי מטעמ ו בגין כל טענה, תביעה ו/או דרישה שתועלה נגדם על ידי צד שלישי כלשהו כתוצאה מתכנים שנמסרו על ידו לפרסום באתר וכתוצאה מקישורים שביצע לאתר. 8 . מדיניות פרסום באתר ותוכן צדדים שלישיים: 8.1 . האתר שומר לעצמו את הזכות לא לאשר נוסח של תגובה או תוכן שאינו ראוי ו/או אינו עומד בסטנדרטים של האתר ו/או שאסור לפרסום ו/או למכירה על פי חוקי מדינת ישראל. 8.2 . האתר רשאי להסיר ו/או לערוך כל תגובה ו/או תוכן באתר. 8.3 . מבלי לגרוע מהאמור, בתי עסק ובעלי מקצוע המצטרפים לאתר ו/או מפרסמים באתר, מסכימים, מתחייבים ומאשרים כי ידוע להם: 8.3.1 . שהאתר ניתן לשימוש כפי שהוא ושהשימוש בשירותיו הוא באחריותם בלבד; 8.3.2 . שהאחריות לתוכן שיועלה ו/או יימסר לפרסום יהיה באחריותו הבלעדית, לרבות שינויים ועריכות שיבוצעו על ידי האתר; 8.3.3 . שהאתר, מנהליו, עובדיו או מי מטעמו לא יהיו אחראים, באופן ישיר או עקיף, לכל נזק לרבות, לגוף, לרכוש או לכל נזק אחר או לכל הפסד אחר, אשר יגרם כתוצאה משימוש באתר, אפילו אם האתר הזהיר, המליץ או ייעץ לעניין מסוים ובשום מקרה האתר לא יהווה תחליף או יישא באחריות בית העסק ו/או בעל המקצוע ו/או המפרסם. 8.4 . בעת שיגור או מסירת תכנים לפרסום באתר, לרבות ביקורות ו/או תגובות, חלה על המפרסם האחריות המלאה והבלעדית לכל תוצאה שתנבע מהפרסום ועליו להקפיד שתכנים כאלה יהיו חוקיים. בין היתר ולמען הדוגמה בלבד, אין לפרסם באתר את התכנים הבאים : 8.4.1 . כל תוכן הידוע כשקרי, מטעה או מסולף; 8.4.2 . כל תוכן הפוגע בזכויות קנייניות של אחרים או מפר אותן לרבות זכויות יוצרים וסימני מסחר; 8.4.3 . כל תוכן העלול להטעות צרכן; 8.4.4 . כל תוכן פורנוגראפי או בעל אופי מיני בוטה; 8.4.5 . כל תוכן הנוגע לקטינים ומזהה אותם, את פרטיהם האישיים או את מענם ודרכי ההתקשרות עימם; 8.4.6 . כל תוכן המזהה אישית אנשים אחרים, מבלי שנתנו את הסכמתם לפרסום זהותם; 8.4.7 . כל תוכנת מחשב, קוד מחשב או יישום הכוללים נגיף מחשב )"וירוס"( לרבות תוכנות עוינות ויישומים מזיקים למיניהם; 8.4.8 . כל תוכן המהווה לשון הרע על אדם, או הפוגע בפרטיותו או בשמו הטוב; 8.4.9 . כל תוכן בעל אופי או תוכן טורדני, מעליב, עוין, מאיים או גס רוח; 8.4.10 . כל תוכן שיש בו, או הוא מעודד לגזענות או אפליה פסולה על בסיס כלשהו; 8.4.11 . כל תוכן המעודד ביצוע עבירה פלילית או עלול להוות בסיס לתביעה אזרחית; 8.4.12 . כל תוכן המנוגד לכללי השימוש המקובלים באינטרנט או העלול לגרום נזק או לפגוע במשתמשי האינטרנט בכלל ובמשתמשי האתר בפרט וכל תוכן שנועד לקדם את האינטרסים של מתחרי האתר. 8.5 . האתר רשאי לסרב לפרסם או למחוק לאלתר כל תוכן שנמסר לפרסום בכל עת שי מצא כי הופרו תנאי התקנון או שתכנים שפורסמו פוגעים או עלולים לפגוע בשירותים הניתנים באתר, במשתמשיו, באתר או במי מטעמו . בנוסף, האתר י היה רשאי במקרה זה למנוע מגולש מלפרסם תכנים נוספים באתר ו / או לחסום את גישתו לאתר. הוראות סעיף זה מוסיפות על זכויות האתר על פי כל דין . 8.6 . מסירת תכנים ו/או תגובות לפרסום באתר מהווה אישור כי המפרסם הוא בעל כל הזכויות בהם וכי הוא רשאי למוסרם לפרסום ו/או הוא בעל הרשאה כדין מבעל הזכויות, המתירה לו למסור את התכנים לפרסום באתר. מובהר כי המפרסם מוחזק כאחראי לשאת בכל נזק ו/או הפסד ו/או תביעה ו/או דרישה שיוגשו נגד האתר בגין שימוש ללא היתר בתכנים כאמור. 8.7 . במסירת התכנים לפרסום מוקנה לאתר רישיון חינם, כלל עולמי ובלתי מוגבל בזמן, להעתיק, לשכפל, להפיץ, לשווק, למסור לציבור, לעבד, לערוך, לתרגם ולהשתמש בתכנים כאמור בכל דרך נוספת, לפי שיקול דעתו, באתר, בדברי דפוס , לרבות בעיתונים, מגזינים, כתבי עת, ספרים וכיו "ב, במדיות דיגיטליות, לרבות באתרי אינטרנט נוספים, בארכיבים דיגיטאליים ובשירותים הניתנים ברשתות תקשורת, לרבות תקשורת חוטית, אל חוטית, סלולארית, כבלים ולווין . 8.8 . האתר רשאי להשתמש בקישורים לאתרים אחרים ("אתרי צד שלישי") וכן במאמרים, תמונות, טקסט, גרפיקה, תמונות, עיצובים, מוסיקה, סאונד, וידאו, מידע, אפליקציות, תוכנה ותכנים או פריטים אחרים השייכים או שמקורם באתרי צד שלישי ("תוכן של צד שלישי"). אתרי צד שלישי ותוכן של צד שלישי אינם נחקרים, מנוטרים, או נבדקים על ידי האתר והאתר לא א חראי לתוכן של צד שלישי שפורסם דרך האתר, שהגעת אליו דרך האתר, שזמין דרך האתר או מותקן בו, כולל תוכן, חוות דעת, אמינות, נוהלי פרטיות או מדיניות אחרת של או כלולים באתרי שלישי או בתוכן של צד שלישי. שימוש בקישור או התרת שימוש או התקנה של אתרים של צד שלישי או כל תוכן של צד שלישי כלשהו אינה מרמזת על אישור או אישור לכך על ידינו. 8.9 . האתר לא לוקח אחריות על כל רכישה שתבצע מאתרי צד שלישי או מחברות אחרות אשר יבוצעו ויהיו בתוקף באופן בלעדי בינך לבין הצד השלישי הרלוונטי. 9 . ניהול האתר: 9.1 . אנו שומרים לעצמנו את הזכות: (1) לפקח על הפרות של תקנון זה; (2) לנקוט בפעולה משפטית כנגד כל מי שמפר את הוראות החוק או הוראות תקנון זה , לשיקול דעתו הבלעדי של האתר, לרבות, ללא הגבלה, דיווח על ה משתמש לרשויות אכיפת החוק; (3) לסרב, להגביל גישה, להגביל זמינות, או להשבית (ככל שניתן מבחינה טכנולוגית) כל תרומה שלך לאתר או כל חלק ממנה, לפי שיקול דעתו הבלעדי של האתר וללא הגבלה; וכן (4) לנהל את האתר באופן שיגן על זכויותיו ורכושו ויקל על תפקודו התקין. 10 . מדיניות פרטיות: 10.1 . האתר מכבד את פרטיות הלקוחות והגולשים. 10.2 . בנוסף למידע אותו הנך מוסר בעת השארת פרטים באתר, האתר אוסף מידע מסוים אודות המחשב שלך, אשר באמצעותו הנך מבקר ומבצע פעולות באתר. המידע נאסף באופן אוטומטי (לרבות באמצעות שימוש בעוגיות Cookies"") והוא עשוי לכלול כתובות IP , סוג דפדפן, זמני גלישה וכניסה לאתר, אופן הגלישה והכלי בו הנך משמש למטרת הגלישה, פרטים לגבי ספק האינטרנט שלך וכתובות אתרי האינטרנט מהם הגעת . (המידע הנמסר בעת ההרשמה והמידע הנאסף על ידי האתר כאמור בפסקה זו יכונו יחד: "המידע הנאסף באתר"). קובץ עוגיות הם קובץ טקסט קטן שאתר, יישום מקוון או דואר אלקטרוני עשויים לשמור בדפדפן האינטרנט ו/או בכונן הקשיח של המחשב לשימוש בביקורים הבאים באתר. 10.3 . המידע הנאסף באתר ישמש את האתר, בין היתר, לצורך הפעלת האתר בצורה המיטבית, לשמירה על איכות ורמת שירות גבוהה, וכן לצורך סטטיסטיקה כללית לגבי השימוש באתר . 10.4 . המידע הנאסף מהשירותים בהם אתה מתעניין או רוכש ועשוי לשמש את האתר או מי מטעמו, בין היתר, לצורך התאמת השירותים המוצעים לך בצורה המיטבית, שמירה על איכות ורמת שירות גבוהה, וכן לצורך סטטיסטיקה כללית . 10.5 . האתר או מי מטעמו רשאים לעשות שימוש במידע הנאסף עליך, בין היתר, למטרות הבאות : 10.5.1 . בכדי לספק לך את המידע שביקשת או מידע נוסף אשר באתר מאמינים שהוא עשוי לעניין אותך, מעת לעת ; 10.5.2 . בכדי להתאים פרסומות ומידע מסחרי על פי העדפותיך האישיות ; 10.5.3 . בכדי ליצור עמך קשר על ידי נציגי האתר בנוגע לשירותים אותם האתר מספק ; 10.5.4 . ניתוח סטטיסטי ומסירתו לצדדים שלישיים; 10.5.5 . תפעולו של האתר ופיתוח אתרים שיוקמו בעתיד; 10.5.6 . ניהול מכירות, שיווק, גיוס לקוחות והצעת שירותים חדשים; 10.5.7 . בכדי לבצע סקרי לקוחות ו / או מחקרי שיווק אשר האתר עורך מעת לעת. 10.6 . האתר יהיה רשאי להעביר מידע אישי ולהעביר מידע לצדדים שלישיים בהתאם להוראות החוק לרבות (למעט מידע רגיש כגון פרטי אשראי או מספרי תעודת זהות), לרבות במקרים הבאים : 10.6.1 . נתת לכך הסכמתך. לעניין זה ״הסכמה״ – הסכמה מדעת, במפורש או מכללא ; 10.6.2 . האתר ו / או מי מטעמו נדרשים על פי חוק להעביר את המידע האמור, למשל , מכוח צו בית משפט ; 10.6.3 . אם הדבר יידרש, לדעת האתר, במסגרת כל מחלוקת, טענה, תביעה או דרישה בהליך משפטי אם יהיו בינך ובין האתר או בין צד שלישי לבין האתר; 10.6.4 . על מנת להגן על זכויותיהם המשפטיות והקנייניות של האתר ו / או מי מטעמו; 10.6.5 . שיתוף רשתות חברתיות כגון פייסבוק, אינסטגרם ואחרות ומפרסמים נוספים ברשת כגון גוגל, טאבולה ואחרים; 10.6.6 . לצרכים סטטיסטים – אנו מספקים מידע אישי לגופים וחברות שאנו נותנים בהן אמון כדי שיעבדו את המידע עבורנו לפי הוראות האתר ובאופן העולה בקנה אחד עם תקנון זה ומדיניות האתר. כלל, וככל שלא ניתנה הסכמה מראש למסירת מידע אישי, מידע המועבר לצרכים סטטיסטים אינו כולל פרטים מזהים; 10.6.7 . אם תפר את תקנון זה אם תבצע פעולות מנוגדות או הנחזות כמנוגדות לדין, או כל ניסיון לבצע פעולות כאלה; 10.6.8 . בכל מקרה שהאתר יסבור, כי מסירת המידע הנאסף נחוצה על מנת למנוע נזק חמור לגוף המשתמש או לרכושו או לגופו או לרכושו של צד שלישי. 10.7 . לצדדים שלישיים כאמור ניתנת גישה לכל או לחלק מהמידע שלך, והם עשויים להשתמש בעוגיות (כהגדרתן לעיל) או בטכנולוגיית איסוף אחרות. 10.8 . חשוב לזכור שלא ניתן לערוב במאת האחוזים מפני פעילות עוינת ונחושה מצד גורמים זרים ולכן אין בפעולות אלה בטחון מוחלט והאתר לא מתחייב שהמידע יהיה חסין באופן מוחלט מפני גישה בלתי מורשית . 11 . הפרת זכויות יוצרים: 11.1 . אנו מכבדים את זכויות הקניין של אחרים. אם אתה מאמין כי מידע או תוכן באתר מפר את זכויות קנייניות השייכות לך, אנא צור קשר באמצעות פרטי ההתקשרות שבתחתית תקנון זה. 12 . שינויים באתר, תקלות והפסקות שירות: 12.1 . מבלי לגרוע מהאמור לעיל, האתר יוכל לשנות מעת לעת את מבנה האתר, ו/או המראה ו /או העיצוב של האתר, את היקפם וזמינותם של השירותים באתר, יהיה רשאי לגבות תשלום בעד תכנים ושירותים כאלה או אחרים על פי החלטתו. כמו כן, האתר יהיה רשאי לשנות כל היבט אחר הכרוך באתר והכל, בלא צורך להודיע על כך מראש. 12.2 . שינויים כאמור יבוצעו, בין השאר, בהתחשב באופי הדינאמי של רשת האינטרנט ובשינויים הטכנולוגיים והאחרים המתרחשים בה. מטבעם, שינויים מסוג זה עלולים להיות כרוכים בתקלות ו /או לעורר בתחילה אי נוחות וכיו "ב. לא תהיה לגולשים באתר כל טענה, תביעה ו /או דרישה כלפי האתר בגין ביצוע שינויים כאמור ו / או תקלות שיתרחשו אגב ביצועם . 12.3 . מבלי לגרוע מן האמור לעיל, האתר רשאי בכל עת להפסיק את מתן השירותים הללו, כולם או מקצתם, לפי שיקול דעתו הבלעדי. האתר ישתדל לפרסם באתר הודעה על הפסקת השירותים זמן סביר מראש. 12.4 . האתר אינו מתחייב ששירותי האתר לא יופרעו, יינתנו כסדרם או בלא הפסקות , יתקיימו בבטחה וללא טעויות ויהיו חסינים מפני גישה בלתי מורשית למחשבי האתר או מפני נזקים, קלקולים, תקלות או כשלים – והכל, בחומרה, בתוכנה , בקווי ובמערכות תקשורת אצל האתר או אצל מי מספקיו. 13 . סמכות שיפוט : 13.1 . על תקנון זה והשימוש באתר יחולו אך ורק דיני מדינת ישראל, אולם לא תהיה תחולה לכללי ברירת הדין הבינלאומי הקבועים בהם . 13.2 . לבתי המשפט במחוז תל אביב תהיה סמכות שיפוט ייחודית בכל עניין הנובע ו / או הקשור לתקנון ו/או למחלוקות משפטיות שיתגלו בינך לבין האתר. 14 . דיוק/ תיקונים טכניים ואחרים: 14.1 . האתר בכללותו, לרבות כל המידע המופיע בו, מוצע לציבור כמות שהוא, ויהיה מדויק ונכון ככל הניתן, ואולם, יתכן והמידע אינו שלם או לחלופין, יתכן ונפלו טעויות טכניות או אחרות במידע. האתר שומר על זכותו לתקן טעויות ו/או שגיאות ו/או אי דיוקים כאמור ולעדכן את המידע באתר בכל עת וללא הודעה מוקדמת. 15 . שונות: 15.1 . תנאי תקנון זה מהווים את כל ההסכמות וההבנות בנוגע לשימוש באתר. אי מימוש או אכיפה של זכות או הוראה בתקנון זה, לא תחשב כוויתור מצד האתר על מימוש הזכות או אכיפת ההוראה. האתר יהיה רשאי להמחות לאחרים את כל או חלק מזכויותיו ו/או חובותיו בתקנון זה. 15.2 . במקרה שייקבע כי הוראה בתקנון זה אינה ניתנת לאכיפה או שהינה חסרת תוקף מטעם כלשהו, לא יהא בכך כדי להשפיע או לפגוע בחוקיותן, תקפותן ואכיפתן של שאר הוראות התקנון. 16 . צרו קשר: 16.1 . האתר מקפיד על קיום הוראות החוק ומכבד את זכותם של משתמשי האתר ואחרים לפרטיות ולשם טוב. אם אתה סבור כי פורסם באתר תוכן הפוגע בך מטעם כלשהו, נא פנה אלינו לפי הפרטים שלהלן ואנו נשתדל לטפל בפנייתך בכל ההקדם. פניות כאמור ניתן להעביר באמצעים הבאים: כתובת: חיננית 9 , תל אביב יפו; טלפון: 053-8279688 ; כתובת דואר אלקטרוני: OFFICE@DNMR.CO.IL עדכון אחרון: ינואר 2025
Decline All
Save settings Accept All
Cookies settings
דנמר נדלן לוגו קטן
דנמר נדל"ן
צור קשר
לפני שאתם יוצאים
מחפשים משרד להשכרה ולא רוצים לבזבז זמן על נכסים לא מתאימים?
דנמר נדל"ן תאתר עבורכם משרדים שמתאימים בדיוק לצרכים של העסק
צריכים עזרה?
למשרדים מותאמים אישית
שלחו הודעה עכשיו